Rif. 760 - Capezzano pianore nuova costruzione vendesi porzioni di quadrifamiliare

Descrizione

CAMAIORE – Capezzano Pianore

Proponiamo in vendita n. 2 villette di un complesso quadrifamiliare

di nuova costruzione, in classe energetica A1, situate a soli 6 km dal mare.

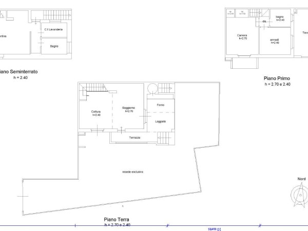
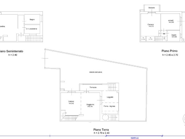
Le villette si sviluppano su tre livelli.

Al piano terra troviamo soggiorno con cucina a vista, terrazza e loggiato;

al primo piano abbiamo due camere, un bagno, ampia terrazza e balcone;

al piano seminterrato (con ingresso sia interno che esterno) si trova un'ampia taverna con bagno e locale tecnico-lavanderia.

Le unità sono dotate ciascuna di giardinetto e posto auto.

Superficie di ogni villetta 145 mq.

Dotazioni: impianto fotovoltaico, riscaldamento a pavimento, forno, impianto di allarme predisposto.

Allo stato attuale è ancora possibile scegliere i pavimenti e i rivestimenti con consegna in circa 1 mese.

Immobili realizzati con ottimi materiali.

Prezzo

€ 420.000

Caratteristiche

Tipologia:

Villa Bifamiliare

Contratto:

Compravendita Residenziale

Località:

Camaiore - Capezzano Pianore

Superficie (mq):

145

Numero Vani:

7

Numero Camere:

2

Numero Bagni:

2

Cucina:

A vista

Riscaldamento:

Autonomo

Garage:

PostoAuto

Giardino:

Privato

Condizioni:

Nuova Costruzione

Dist. mare (m):

6000

Cl. Energetica:

A1

IPE:

69.1 kWh/m2

Galleria fotografica

Contattaci ora, gratis e senza impegno

* Nome e Cognome:

* E-mail:

Telefono:

Oggetto:

Messaggio:
Presto il consenso al trattamento dei miei dati personali come specificato nella pagina dell' informativa Privacy

Presto il consenso a inviare al mio indirizzo di posta elettronica, periodiche informazioni sui servizi e sulle tariffe praticate.
Controllo Antispam*: Qual è il numero tra 9 e 11?